Solar industrial subasta en Madrid, Villaverde



Solar industrial subasta en Madrid, Villaverde

San Dalmacio 17, 28021 Madrid (Madrid)
  • Addmeet Inversión, Solar industrial Subasta en Madrid
  • Addmeet Inversión, Solar industrial Subasta en Madrid
  • Addmeet Inversión, Solar industrial Subasta en Madrid
  • Addmeet Inversión, Solar industrial Subasta en Madrid

Características

  • Superficie:41.281  m²
  • Ocupación:10.320  m2(%)
  • Edificabilidad:82.562  m²
  • Usos compatibles:Pequeña industria, Mediana industria, Gran industria
  • Clave urbanística:9 Grado 5
  • A.R.M:15,00 m
  • Fondo:268,00 m
  • P.E:248,00 m
  • ServidumbresNo
  • Fachada:30 m

Datos económicos

  • Precio venta:4.083.315 €
  • Precio venta / m²t:49 €/m²
  • Precio / m²s:99 €/m²

Comentarios

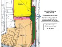
  • Solar industrial en a subasta en Madrid, Villaverde Alto, antigua Academía Especial del Ejército. El solar se compone de tres parcelas. Parcela 2.Finca Registral 124.083: La parcela tiene forma de polígono irregular estando situada en paralelo a la Avenida de Andalucía y coincide con el área destinada por el PGOUM a Sistema General, Vía Pública Urbana. La superficie y forma de esta parcela se ha obtenido mediante el plano de la alineación, Oficial de Oficio 01/2010 del Ayuntamiento de Madrid. Ocupa una superficie total medida sobre plano de 9.345,92 m2. Parcela 3. Finca Registral 124.084: La parcela tiene forma aproximada a un rectángulo destinada a viario público de cesión al Ayuntamiento- conexión con la Avenida de Andalucía, su superficie y forma se han obtenido del plano de alineación Oficial de Oficio 01/2010 del Ayuntamiento de Madrid, ocupa una superficie total de 2.726,68 m2. Parcela 6. Finca Registral 124.087: La parcela tiene forma aproximada a un rectángulo, limitada de Oeste a Este, entre parcela nº 3 y la calle San Dalmacio. La superficie y forma de esta parcela se ha obtenido mediante el plano de alineación Oficial de Oficio 01/210 del ayuntamiento de Madrid y de la definición de linderos de la escritura literal de la finca 23.835, ocupa una superficie total de 29.209 m2.

Inmuebles que quizás te interesen

  • Oficina en Álava

    Oficina en Álava

    SBA: 224m²

    Precio: 285.000 €

    Rentabilidad: 6,33%

    Renta: 6,70€/m² & mes

    Contrato: Hasta2016

  • Nave industrial en Barcelona

    Nave industrial en Barcelona

    SBA: 2.026m²

    Precio: 1.418.802 €

    Rentabilidad: 8,00%

    Renta: 4,67€/m² & mes

    Contrato: Hasta2006

  • Local en Asturias

    Local en Asturias

    SBA: 143m²

    Precio: 470.000 €

    Rentabilidad: 6,52%

    Renta: 17,86€/m² & mes

    Contrato: Hasta2035

  • Local en Asturias

    Local en Asturias

    SBA: 185m²

    Precio: 470.000 €

    Rentabilidad: 6,55%

    Renta: 14,30€/m² & mes

    Contrato: Hasta2035

Localización del inmueble